
En pizza i Kärrtorp
Vad är det med arkitekter och hörn? Varför har arkitekter i alla tider haft ett så laddat förhållande till hushörn? Jag menar, det finns ju hörn på så gott som alla arkitektritade hus, varför har arkitekter så svårt för att ta sig an och ta sig runt sina egna hörn? Klassicister älskar maffiga fasader med prominenta ytterhörn, men deras sätt att ignorera byggnaders baksidor och bakgårdars innerhörn visar sig med tiden problematiskt. Modernister är misstänksamma mot alla hörn överhuvudtaget, de drömmer om hörnlösa hushörn i städer utan hörnhus, vilket också visar sig vara en problematisk hållning med tiden. En arkitekt som ofta kritiserat modernistisk stadsplanering offentligt, och som gör anspråk på att själv rita urbana
hus, också han får problem med sina hus- och kvartershörn. Vad är grejen med arkitekter och hörn?!
Titta här. I situationsplanen från 1697 livar Stockholms slotts flyglar med huvudbyggnadens längor.


Några år senare har Tessin ändrat sig. I situationsplanen från 1713 har han förskjutit flyglarna in ett stycke från mittpartiets fasadliv.
Och med ens kommer huvudbyggnadens monolitiska kub med sina fyra prominenta hörn och hörnkedjor mer till sin rätt. Tack vare greppet att knuffa flyglarna in ett stycke.

Arkitekten knuffar in flyglarna ett stycke från gatans liv
, arkitekten avstår självmant från att bygga fullt på tomten
– inte av nöden, inte för att han tvingas till detta av yttre omständigheter, utan bara
för den arkitektoniska effektens skull, för det estetiska uttryckets skull, för utseendets skull, för att slottets stora kvadrat skall få fyra stycken väl synliga, lätt avläsbara, prominenta, hörnkedjeprydda ytterhörn.
Men titta här. Om Tessin å ena sidan lägger sig vinn om att slottets stora kvadrats fyra prominenta ytterhörn verkligen skall komma till sin rätt, med hörnkedjor och allt, då är han å andra sidan inte alls lika upptagen av att ta hand om de inverterade hörn, de gårdsinnerhörn som bildas mellan utstickande flyglar och huvudbyggnad.

Egentligen är det Hårleman som efter Tessins död och efter ett tjugo år långt bygguppehåll får i uppdrag att leda arbetet med att bygga slottet färdigt. Men som vi ser här bryr sig Hårleman av allt att döma lika litet som Tessin. Att huggna fönsteromfattningar på huvudbyggnadens långsidor naggas litet väl mycket i kanten när flyglarnas taklister dammar rakt in i fasadkompositionen, det bekommer inte Hårleman. Han försöker inte heller skapa en medvetet artikulerad övergång från flyglarnas taklistordning till huvudfasadens fasadrusticering. Det får bli som det blir.
Men det beror inte på att Hårleman och Tessin är obegåvade eller lata. De gör bara som alla andra, de tänker och känner som alla andra i deras samtid gör. Vissa hörn är viktigare och intressantare än andra hörn. Framsida och utsida och ytterhörn är viktigt, något man lägger mycket krut på att artikulera. Baksida och insida och innerhörn behandlas styvmoderligt eller ignoreras helt, gestaltningsmässigt.
Även den sociala misär och de sanitära olägenheter som präglar stadens baksidor och dess tätt bebyggda bakgårdar ignoreras av tidens arkitekter.

Vi tar nu ett skutt ett par hundra år framåt i tiden. Funkis och esprit nouveau. Arkitekter börjar måna om boendekvaliteter för vanligt folk, och finner snart att det är svårt att få till riktigt bra planlösningar inne i hörnet mot gården. Till det kommer bakgårdarnas sociala stigma. Kvartersstadens trånga gårdar förknippas – inte utan anledning – med ekonomisk misär och fysisk ohälsa.
Det blir därför under 1900-talet efterhand i det närmaste omöjligt för en altruistisk och utilitaristisk arkitekt att med bibehållen självkänsla och yrkesstolthet sätta sig att rita, säg, bostadshus med enkelsidiga lägenheter som vetter mot norr och mot det sunkigaste innerhörnet av en mörk och muggig gård. Ingen regel utan undantag förstås, men en bra
arkitekt befattar sig under 1900-talet helt enkelt inte med sådant.
I den redan befintliga kvartersstaden byggs det visserligen en del funkishus med mer eller mindre muggiga bakgårdar, på grund av höga tomtpriser och högt exploateringstryck. Men då tillfälle bjuds att bygga på jungfrulig mark, from scratch, då ser man till att enbart bygga kvarter helt utan bakgårdar. Bostadshusen i de nybyggda funkisförorterna har inga inverterade gårdsinnerhörn alls, enbart ytterhörn: punkthus, skivhus, smalhus.
Gårdsinnerhörn anses alltså vara en styggelse som måste utrotas. Men å andra sidan vill de tidiga funktionalisterna fortfarande göra något arkitektoniskt effektfullt av varje kvarters- och husytterhörn. Och även om klassicismens sätt att dekorera hörn, med rusticeringar och hörnkedjor, naturligtvis är absolut och kategoriskt verboten finns det ändå sätt för den tidiga funktionalismens ursprungligen klassiskt skolade arkitekter att ta sig runt dekorförbudet.
Man kan ju till exempel använda grafiskt expressiva balkonger för att markera en byggnadskropps hörn. Som Markelius gör i hörnet Dalagatan-Tegnérgatan i Stockholm, eller som alla de arkitekter som ritar hus vid Tessinparken i Stockholm gör.


Dessa hus har allihop balkonger som är mer dekorativa än de är användbara. Balkongerna är allesammans alltför långsträckta och långsmala för att kunna möbleras eller egentligen vistas på. De löper också gärna över hörn, L-formade, som vinkelhakar. De omfattar, griper tag om, betonar huskropparnas prominenta ytterhörn.
Nu tar vi ytterligare ett kliv, ett litet mindre kliv framåt i tiden, från mellankrigstid till efterkrigstid.

Kärrtorp är en av efterkrigstidens tidiga folkhemsenklaver i Stockholms södra förorter. Planen klubbas 1947. Centrumanläggningen och den kringliggande bostadsbebyggelsen färdigställs strax därefter, under tidigt 1950-tal. Kärrtorps tunnelbanestation öppnas 1958.

Tunnelbanestationens entré mynnar i det nordöstra hörnet av ett bilfritt förortstorg. Torget omfattas och inramas på andra sidan torget, i söder och väster, i korsningen Kärrtorpsvägen-Söderarmsvägen, av det L-formade kvarteret Lågskär. Kvarteret är inte underindelat i mindre fastigheter utan består av en enda fastighet, Lågskär 1.
Den L-formade fastigheten är bebyggd med två friliggande huslängor i rät vinkel, en länga söder om platsbildningen, och en snarlik länga väster därom. Hjalmar Klemming ritar, Svenska Bostäder bygger.



De båda friliggande längorna tillhör alltså samma fastighet, och längorna sitter faktiskt ihop rent fysiskt, under mark. Om man bor i den södra huslängan kan man när det regnar torrskodd gå och hälsa på sina grannar i den västra längan via en underjordisk kulvert och förbindelsegång.
Men över mark sitter längorna alltså inte ihop. Den som inte bor i något av de båda husen, och den som inte har besökt husens gemensamma källare skulle aldrig kunna gissa att de faktiskt sitter ihop under mark. Arkitekten har skapat en illusion av ett hörnlöst hörn.
Tillbaka upp ur källaren, ut på gatan, till kvarterets och förortstorgets utsida, till korsningen Kärrtorpsvägen-Söderarmsvägen. Härifrån ser vi att den södra längans långsida överlappar den västra längans södervända gavel, men inte hela vägen. Den södra längan skulle lätt ha kunnat förlängas västerut några meter till, ända ut i hörnet så att säga, fram till gatukorsningens räta vinkel. Men så sker inte. Och av allt att döma föreligger det inget direkt praktiskt skäl till att inte förlänga. Det står inte något vackert gammalt träd i vägen. Det ligger inte någon fornlämning i vägen. Planförfattaren vill helt enkelt inte bygga igen här. Stockholms stads planavdelning och husens arkitekt avstår självmant från, väljer bort att bebygga och exploatera detta hörnläge maximalt.
Om mellankrigstidens tidiga funktionalister har nöjt sig med att eliminera det sunkiga gårdsinnerhörnet, som ju förknippas med social misär och annat tråkigt, då kommer efterkrigstidens altruistiska och utilitaristiska folkhemsarkitekter att efterhand och i allt högre grad misstänkliggöra också det prominenta kvarters- och husytterhörnet, som ju – inte utan anledning – förknippas med maktens boningar och palats, med maktfullkomlig och egenmäktig överhet, med överklassen helt enkelt. (Jämför det hörnkedjeprydda Stockholms slott, ovan.)



Murar och rusticerade murhörn blir för efterkrigstidens planerare och arkitekter metaforer för förtryck och ojämlikhet. Tomrum, transparens och genomsiktlighet blir metaforer för frihet och jämlikhet, för broderskap och demokrati. Det anses inte längre riktigt fint
i planerar- och arkitektkretsar att betona byggnaders eller stadskvarters prominenta ytterhörn. Att göra hål och att glesa ut anses finare
än att fylla i och att fylla igen. Det vackraste och bästa hörnet är det frånvarande hörnet, det hörn man avstår från att bebygga. Det ideala huset har inga hörn. Den ideala staden har inga hörnhus.
Men om man kan hävda att det systematiska eliminerandet av sunkiga gårdsinnerhörn i förortsbyggandet under mellankrigstiden faktiskt förändrar livet för underklassen, rent konkret, i sak, då går det knappast att hävda att det systematiska eliminerandet av prominenta kvartersytterhörn i förortsbyggandet under efterkrigstiden också gör det. Eliminerandet av prominenta kvartersytterhörn handlar snarast om sken och yta, om image om man så vill, om ett planeringstänkande i bilder och metaforer.


Titta här. Det går så långt att man börjar undvika alltför prominenta husytterhörn också när man bygger hörnhus inne i den befintliga kvartersstaden. Se på husen i de här bilderna. Man har visserligen byggt igen kvartershörnen i båda fallen, vilket betyder att man fortfarande har en bakgård med samma problematiskt inverterade gårdsinnerhörn som tidigare, men man försöker skapa en illusion, en känsla, en image av hörnlöshet genom att avstå från att bebygga några kvadratmeter av själva kvartershörnet. (Hörnet Drottninggatan-Wallingatan, respektive hörnet Sveavägen-Tegnérgatan, Stockholm.)
Det hörn, det ytterhörn är finast som är – tomt.
Lustigt nog, ironiskt nog finns det idag i Kärrtorps centrum, i direkt anslutning till fotgängarpassagen mellan Kv. Lågskärs båda friliggande längor, en liten restaurang som av sin ägare har döpts till restaurang Le Coin (Hörnet
). Ironiskt, eftersom planförfattaren och husens arkitekt har haft ambitionen att den förbipasserandes upplevelse av det här torghörnet skall vara att det, eh, inte finns något hörn i det här hörnet.

Men riktigt hur viktig illusionen av det hörnlösa hörnet är för efterkrigstidens planerare och arkitekter (nämligen som metafor för jämlikhet och demokrati), det är det kanske inte alla förbipasserande Kärrtorpsbor som omedelbart och intuitivt förstår
. Det måste man förmodligen vara fackman för att begripa
. Det måste man nog ha lärt sig
, till exempel på en arkitektskola. Det är hur som helst ingenting som restaurangens ägare förstår
när han skall till att döpa sin restaurang i Kärrtorp. Hans restaurang ligger ju faktiskt i ett hörn, kan man tycka. Också kring förortstorg med metaforiskt hörnlösa hörn finns det ju trots allt byggnader med, eh, hörn.
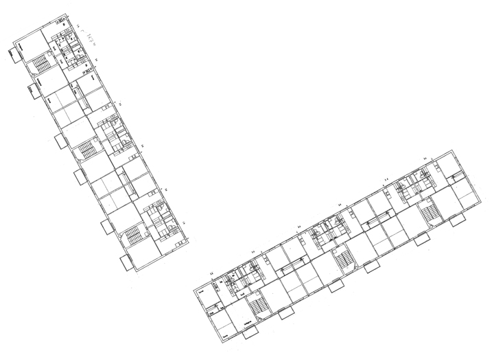
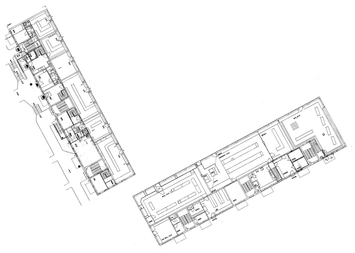
Dags för ytterligare ett litet skutt i tiden, till vår egen samtid. Ett stenkast från Kärrtorps centrums hörnlösa köptorgshörn ligger Kv. Mursmäckan, med femton stycken så kallade stadsradhus fördelade på två radhuslängor. 6 radhus i den ena längan, 9 hus i den andra. A1 arkitekter har ritat, Småa har byggt.

Precis som Kv. Lågskär har Kv. Mursmäckan planerats och byggts på jungfrulig mark, from scratch. Och likheterna slutar inte där. Också här är kvarteret bebyggt med två friliggande huslängor i rät vinkel. Den ena längans långsida överlappar också här ett litet stycke av den andra längans kortsida och gavel – faktiskt i perfekt symmetri med Kärrtorps centrums hörnlösa kvartershörn.
Av allt att döma föreligger det inte heller här något direkt praktiskt skäl till att inte fylla ut hela kvarteret, att inte fullt ut bebygga kvartershörnet i korsningen Kärrtorpsvägen-Sophie Sagers gata. Det står inte heller här något vackert gammalt träd i vägen. Det ligger inte heller här någon fornlämning i vägen. Man tvingas inte av yttre omständigheter, man avstår självmant från, man väljer bort att bebygga och exploatera detta hörnläge maximalt.
Titta. Se hur lika varandra dessa båda hörnlösa kvartershörn är.


Och titta här. Den radhuslänga som delvis överlappar den andra radhuslängans gavel har en trappstegssiluett, i perfekt symmetri med hur en av huslängorna i Kärrtorps centrum också den har en gavel med trappstegssiluett.


Längornas trappstegsformade gavlar kommer sig av att det både i Kv. Mursmäckan och i Kv. Lågskär finns utskjutande envånings lågdelar in mot kvarterets insida, gårdssidan. Och i båda fallen är kvarteret som sådant L-format, som en vinkelhake som inramar, omfattar, griper tag om – i fallet Mursmäckan inramar, griper tag om ett stycke parkmark, i fallet Lågskär ett förortstorg. Och så vidare.


Det roar mig att notera så många likheter mellan dessa båda exempel. Symmetrier är inte fel! Att citera förebilder är inte fel!
Men radhusens arkitekt skulle kanske hävda att Kärrtorps centrum inte alls varit en förebild, att hans längor med stadsradhus inte alls är modellerade efter huslängorna i Kärrtorps centrum, att alla eventuella likheter kvarteren emellan är en ren tillfällighet. Okay, jag köper det. Det är faktiskt fullt tänkbart. Det är nämligen inte alls förvånande att en arkitekt som på 2010-talet måste lösa problemet med hur man skall ta sig förbi ett kvartershörn till slut på punkt efter punkt visar sig göra exakt samma val som, väljer och väljer bort i perfekt symmetri med, sina kolleger på 1940- och 1950-talen. Arkitekter tänker och känner egentligen precis på samma sätt nu som för femtio år sedan. Som för tvåhundra år sedan, förresten. Stilar skiftar, politiska system och ideal skiftar, men att rita hus förblir sig likt.
En fråga bara. Radhusens arkitekt påstår att den radhustyp han ritat och fått bygga i Kärrtorp är urban
(citat arkitektens hemsida: ett urbant enbostadshus
). Till skillnad från hus i förorten som inte är urbana
, får man förmoda. Vad skiljer i så fall ett urbant
hus i förorten från ett som inte är det?
För att svara på den frågan räcker det i en arkitekturkontext att slå fast att urbanitet inte är arkitektur, helt enkelt. Av det följer sedan allt. Urbanitet är addition, arkitektur är reduktion. Urbanitet är otuktat, arkitektur är tuktat. Urbanitet är urskillningslöst. Arkitektur går tvärtom ut på att just ha urskiljning, att sortera, att renodla, att välja – och i ännu högre grad att välja bort. Går ut på att skala av, att avstå från, kort sagt att inte bygga. Urbanitet är inte arkitektur, och arkitektur är inte urbanitet. Urbanitet är att bebygga, arkitektur är att inte bebygga.
Arkitektur och urbanitet är två stycken ömsesidigt, inbördes uteslutande företeelser (mutually exclusive). Urbanitet är något som endast uppstår och frodas arkitekter till trots. Det urbana uppstår först där arkitekturen slutar. Så om man som arkitekt på 2010-talet gör anspråk på att rita urbana
hus, men ändå helt självmant avstår från, och väljer bort att bebygga ett prominent kvartershörn, då framstår slutresultatet för en utomstående betraktare faktiskt inte alls som särskilt mycket urbanare
än vilket annat bostadsbyggeri i förorten som helst – eftersom de övergripande val och prioriteringar arkitekten gjort ändå till sist varit så förutsägbart arkitektiga.
Precis som bostads- och butikslängorna i Kärrtorps centrum inte framstår som särskilt urbana
– eftersom de också är såpass arkitektiga skapelser.
Att två arkitekter som skiljs åt tidsmässigt av flera decennier, och inte minst skiljs åt ideologiskt av modernitetskris och fin de siècle, att de båda ritar varsitt kvarter med bostäder i Kärrtorp som råkar (?) bli varandras perfekt symmetriska spegelbilder (!) visar hur mycket dessa båda skapelser innerst inne är precis samma andas barn. Nämligen arkitektighetens.
Men man behöver inte bege sig särskilt långt från Kärrtorp för att i vår samtid också finna exempel på förortsbyggande som inte alls på samma vis präglas av tuktad arkitektighet.
I detta syfte beger vi oss ett kort stycke västerut, till den Kärrtorp närbelägna förorten Älvsjö, och till det nya Kv. Pendlaren vid Älvsjö torg. AW arkitekter (numera Storesund arkitekter) har ritat, Familjebostäder bygger.
Också här bygger man på jungfrulig mark, from scratch.

I skrivande stund är hyresrätterna i kvarteret fortfarande under uppförande och ännu inte riktigt inflyttningsklara. Men där, i Älvsjö, där ser man redan nu att där har man minsann inte valt bort eller avstått från att bebygga något kvartershörn. Man har till och med adderat en utskjutande flygellänga till ett av det egentliga bostadskvarterets fyra hörn – och därmed fått inte fyra utan hela fem inverterade innerhörn på halsen att försöka få fason på planlösningsmässigt. Och det har väl gått sådär.
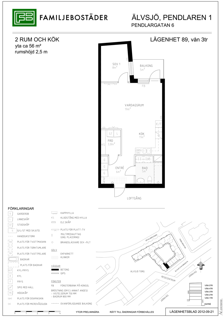
Titta bara på den här fyrarummaren. Märk att balkongen som vetter mot Älvsjö torgs inverterade innerhörn delas med grannar på ömse sidor och att avskiljande väggar därför kommer att sättas upp – vilket i sin tur kommer att göra den fria sikten ut över torget ännu mer begränsad än den först framstår på den här planritningen. Bara ett av tre sovrum kommer att ha fri sikt (nåja) ut över torget.



Och titta här. Mer planlösningsmisär i Älvsjö. En enkelsidig tvårummare med fönster åt gården, längst inne i kvarterets allra mörkaste och muggigaste, norrvända gårdshörn. Märk att balkongen delas med en granne och att en avskiljande vägg därför kommer att sättas upp – vilket i sin tur kommer att göra den fria sikten ut över gården ännu mer begränsad än den först framstår på den här planritningen. Bara ett av två rum kommer att ha fri sikt (nåja) ut över gården.
Det fanns en tid då en samvetsgrann arkitekt, en bra
arkitekt helt enkelt inte befattade sig med att rita lägenheter av detta slag. Vad hände?
Avregleringarna hände. Exemplet Kv. Pendlaren i Älvsjö visar att det inte går att avreglera bostadsbyggandet hur mycket som helst, varken i urbanitetens eller valfrihetens eller någon annan mer eller mindre grumlig ideologis namn. Precis som det finns brand- och tillgänglighetsnormer måste det i en modern välfärdsdemokrati finnas planlösningsnormer värda namnet.
Alltnog. Vi kan konstatera att arkitekters förhållande till hörn är laddat. Klassicister skyr alldagliga baksidor och innerhörn. Modernister skyr prominenta framsidor och ytterhörn.
Men ingen regel utan undantag. Titta här. Peter Celsings förslag i tävlingen 1957 om ett nytt Wenner-Gren Center i Stockholm.

Istället för ett uppåtsträvande höghus på tomten (höghus var ju på modet vid den tiden) föreslår Celsing en hopkurad, monolitisk kub i fonden av Sveavägen. Kontorsvåningarnas växelvis olika långa fönsterrader lämnar på varannan våning olika mycket blind vägg närmast hushörnet. Sett på håll ger denna för sin tid ovanliga och atypiska fönstersättning en grafisk effekt som starkt alluderar på rusticerade hörnkedjor och klassicistisk palatsarkitektur. (Jag har svärtat fönstren för att man bättre skall se den hörnkedjeliknande effekten.)
Och titta här. Peter Celsings brutalistiska betongarkitektur rammar helt oförmedlat rakt in i det gamla husets puts. Tillbyggnadens sockel har osökt gjutits ihop med, i samma liv som, det äldre husets sockel. Precis så självsvåldigt som man förväntar sig att en 1900-talsmodernist bygger till ett gammalt hus.

Men alldeles över sockeln låter tillbyggnadens arkitekt knäcka sin fasad något, vika in den något innanför sockelns liv. Det gamla Carolina Redivivas rusticerade hörnkedja lämnas på det viset orörd. Celsing prioriterar det stiligt rusticerade byggnadshörnets vertikal och den befintliga biblioteksbyggnadens skulpturala verkan framför att låta alla fasader, gamla som nya, till varje pris liva med varandra – precis som Tessin eller Hårleman skulle ha gjort.
Avslutningsvis: En pizza i Kärrtorp, förslag till nybyggnad (infill
) i hörnet Kärrtorpsvägen-Sophie Sagers gata, Kv. Mursmäckan, Kärrtorp:


Montage: Mikael Askergren © 2013. Fotoförlaga: Pär Eliaeson © 2013.
Kvarteret med stadsradhus i Kärrtorp har som sagt ritats av A1 arkitekter och byggts av Småa. Radhuskvarteret belönades 2012 med utmärkelsen Årets Stockholmsbyggnad. Själva kvartershörnet lämnades av Stockholms stads stadsbyggnadskontor och av arkitekten intressant nog (och typiskt nog) obebyggt.
Återstår bara för SBK att omlokalisera några parkeringsplatser och skriva ett start-PM för Ny detaljplan för del av Kv. Mursmäckan.
En pizza i Kärrtorp) i arkitekturtidskriften Kritik, Stockholm, nr 21-oktober 2013. Rubriken alluderar naturligtvis på En pizza i Jordbro, en av filmtitlarna i Rainer Hartlebs berömda dokumentärfilmssvit.
Kritik #21
Turning a Corner
Mer om planlösningsmisären i Älvsjö:
Det nya Lort-Sverige
Mer om att självmant avstå från att bebygga:
Tack, Sune!
Mer om arkitekters och planerares bruk av metaforik:
Sjukdom som metafor
En stadens encyklopedi
Illustrationer
• Stockholms slott, ytterhörn med hörnkedja respektive gårdsinnerhörn, foto: Pär Eliaeson 2013.
• Bakgårdsmisär hörnet Hamngatan-Malmskillnadsgatan, Stockholm, foto: Lennart af Petersens 1958, Stockholms stadsmuseum, Stockholmskällan.
• Balkonger över hörn, starkt betonat kvartershörn i innerstaden, hörnet Dalagatan-Tegnérgatan, Stockholm, foto: Pär Eliaeson 2013.
• Balkonger över hörn, starkt betonade ytterhörn hos friliggande byggnader, skivhus vid Tessinparken, Stockholm, foto: Gustaf W:son Cronquist 1936, Digitala Stadsmuseet CR 296.
• Kärrtorp på 1950-talet, vykort med motiv från Kärrtorp, ur Kenneth Ahlborns Längs linje 17: en bildsamling 1936-1985, Höghus förlag, Älvsjö 2008.
• Förslag till ändrad och utökad stadsplan för Kärrtorp, Stockholms stad 1948, bildkälla: Wikimedia Commons (montage/svärtade huskroppar: Mikael Askergren 2013).
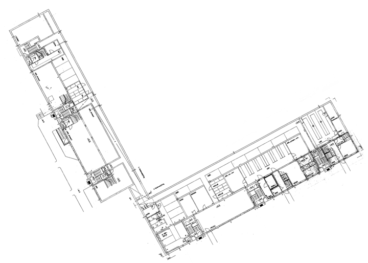
• Kv. Lågskär 1, Kärrtorp, bostadshus med butiker, Stockholms stads offentliga ritningsarkiv (montage/sammanställning av ritningar: Mikael Askergren 2013).
• Kvartershörnet
försvinner, en historisk utveckling i tre steg, tredelad grafisk illustration i svart och gult, montage: Mikael Askergren 2013.
• Indragna kvartershörn, hörnet Drottninggatan-Wallingatan respektive hörnet Sveavägen-Tegnérgatan, Stockholm, foto: Pär Eliaeson 2013.
• Restaurang Le Coin (
Hörnet), Kv. Lågskär, Kärrtorp, foto: Pär Eliaeson 2013.
• Situationsplan, Kärrtorp, registerkarta över Stockholm 1987-1991 (montage/svärtade huskroppar: Mikael Askergren 2013).
• Jämförelse mellan (frånvarande) kvartersytter- och gårdsinnerhörn i Kv. Lågskär respektive Kv. Mursmäckan, Kärrtorp, foto: Pär Eliaeson 2013.
• Det nya
torgetsinnerhörn, Kv. Pendlaren, Älvsjö, foto: Pär Eliaeson 2013.
• Planlösningsmisär, Kv. Pendlaren, Älvsjö, 4 rum och kök respektive 2 rum och kök, ritningar från Stockholms stads bostadsförmedlings hemsida.
• Situationsplanen för Kv. Pendlaren kommer från Stockholms stad.
• Wenner-Gren Center, Stockholm, tävlingsförslag Kaba 1957 av Peter Celsing, tidskriften Byggmästaren nr 3-1957 (montage/svärtade fönster: Mikael Askergren 2013).
• Hörnkedja och tillbyggnad, Carolina Rediviva, Uppsala, foto: Mikael Askergren 2013.
• En pizza i Kärrtorp: förslag till nybyggnad (så kallat infill) i korsningen Kärrtorpsvägen-Sophie Sagers gata, Kärrtorp, montage: Mikael Askergren 2013 (fotoförlaga: Pär Eliaeson 2013).